|
The portals were treated as fixed pressure boundaries, with air
at a temperature of 2.8°C being convected in. The tunnel wall
temperatures were assumed to be known: 12.8°C at the sides and
85°C (near the fire) to 30°C (near the portals) along the top.
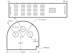
The working fans have a thrust of 1748N and were simulated by
an imposed velocity of 36.5m/s, surrounded by a solid shield.
A swirl velocity of half the axial velocity was also applied.
Inactive fans were simulated as an adiabatic blockage.
The simulation was steady-state and had to take account of
the key physical phenomena:
- turbulence;
- buoyancy phenomena generated by the fire;
- heat and smoke release at the fire;
- radiative heat transfer.
The air was treated as an ideal gas and turbulence effects were
modelled using the k-e
model. The pan used for the fire was, in reality, filled with
a water layer on which the burning fuel oil floated. The
combustion process was not considered in the simulations, which
used a fixed volumetric heat source. Simulations with and
without radiation were carried out. In accordance with normal
practice, the heat source was reduced by 30% in the non-radiation
case (6.36MW compared with 9.61MW). For radiation modelling the
built-in IMMERSOL method was used.
|